Site Plan & Layout
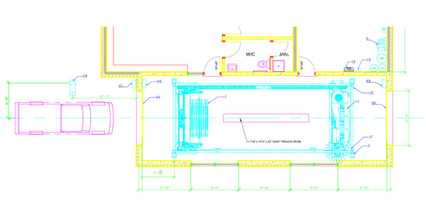
From the begriming to the end of your project we are here to help make your project go as smoothly as possible. When you are ready to proceed with your project, Washtech can provide you with a equipment layout based on your floor plan in AutoCad format.
Once you finalize your plans, we can provide you with a complete set of installation drawings.
► Equipment Layout
► Underground Conduit Layout
► Under floor Tub Heat Layout
► Electrical Layout
► Plumbing Layout
All designed you make your project proceed as easily as possible.
Let us help you!
